Apartament duplex impozant cu 5 camere, 4 bai | garaj si boxa


  • 5 Camere
  • 4 Bai
  • 290 mp construiti
Descriere

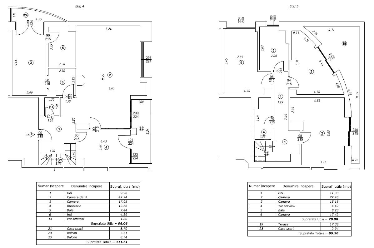
Situat in zona premium Primaverii, acest apartament duplex cu 5 camere se afla la etajele 4+5 ale unui imobil S+P+6 finalizat in 2012.
Are o suprafata totala de 290mp, 175mp utili si 30mp terase.
Etajul 4 este compus din living cu semineu, bucatarie separata si complet echipata cu iesire pe terasa, grup sanitar si dormitor matrimonial cu baie proprie si iesire pe terasa.
Etajul 5 este compus din 3 dormitoare care impart 2 bai si terasa.
Pretul Include 1 loc de parcare si 1 boxa in garajul subteran.
Imobilul beneficiaz? de paza 24/7.

Floor Plans
€ 1.180.000
  • 143162, Primaverii

    Apartament duplex impozant cu 5 camere, 4 bai | garaj si boxa

Similar Properties


€ 670.000
  • 4 Camere
  • 2 Bai
  • 180 mp

Amplasat in zona verde si linistita a cartierului Primaverii, aproape de parc si metrou, acest apartament cu 4 camere se afla la etajul 2 al unui imobil S+P+5 finalizat in 2003. Vederea este catre... Citeste mai mult

€ 2300/luna+TVA
  • 3 Camere
  • 2 Bai
  • 150 mp

Amplasat in zona Primaverii, acest apartament cu 3 camere se afla la etajul 2 al unui imobil S+P+5 finalizat in 2005. Are o suprafata construita de 150mp dintre care 113mp utili. Este compus din... Citeste mai mult

€ 3300/luna+TVA
  • 3 Camere
  • 3 Bai
  • 270 mp

Amplasat pe o strada linistita in zona Primaverii, la mica distanta de mers pe jos de metrou, foarte aproape de Parcul Herastrau, acest apartament cu 3 camere se afla la parterul unui imobil S+P+5... Citeste mai mult